This is one part of a multi building development plan for a church in my town. These plans were not finalized but meant to be a proposal for the land usage.The following images consist of the Community Center aspect of the plan.The goals of this building were to:
- Provide sports and fitness facilities
- Provide educational rooms
- Provide affordable meeting and banquet rooms
Overview
- Current configuration is 206,007 sq ft on one floor.
- Designed to provide the community a variety of options for health and wellness, as well as meeting space for community events or social activities.
Weight Lifting Area
The main fitness center includes 14,341 sq ft of workout space and includes several cardio machine options, free weights, plated machines, and more to cover the entire body.
A dedicated space for women to workout, as well as Pilates and a separate area for more body weight exercises, or group fitness programs like CrossFit, are also provided.
A short-term childcare option is available to watch kids while parents are in the facility.
Basketball
Although, not finalized, the current configuration includes 3 main courts.1 court is equipped with collapsible bleachers for games.
The other 2 courts also have side nets for increased practice areas.
The best configuration for these courts has not yet been determined.
The gym can also be equipped with volleyball nets
Indoor Soccer
Indoor soccer allows games to be played rain or shine.
Plenty of viewing windows and spectator space
Table Games/ Racquetball
This center includes:
- 5 glass fronted racquetball courts
- Table games including billiards, table tennis, air hockey, and foosball
Equipment can be rented or provided at a nearby desk attendant that will monitor the area
Rock Wall
A 30 ft climbing space can be used for top rope climbs or bouldering
Dance / Aerobic Area + Senior Lounge
10 Spaces of various sized provide for different cardio activities such as dance, aerobics, yoga, or martial arts.
A senior lounge is also provided for a dedicated space for socialization and senior activities.
MMA Gym
The current design includes layouts for boxing and a matted space for other martial arts training.
Some weight- training equipment is included, but most will likely be done in the main weight room.
Why MMA?
In addition to improving your mental game and learning self defense, there are few places that offer a better and more thorough workout than an MMA gym. In addition to taking a mix or classes in different fighting styles, an MMA gym also provides weight-training equipment and conditioning classes, all of which will get you into top physical shape.
Text Source: https://www.thearenagym.com/join-mma-gym/
Spinning Classes
Indoor cycling (spinning) can improve your overall physical fitness by building strength and cardiovascular endurance. Classes can also help boost your mood and provide you with a healthy, enjoyable activity.
Locker Rooms
Lockers have been set in an open format for families to access
8 family changing rooms are provided for special needs, or gender neutrality.
Additional gender specific locker and shower rooms are also available.
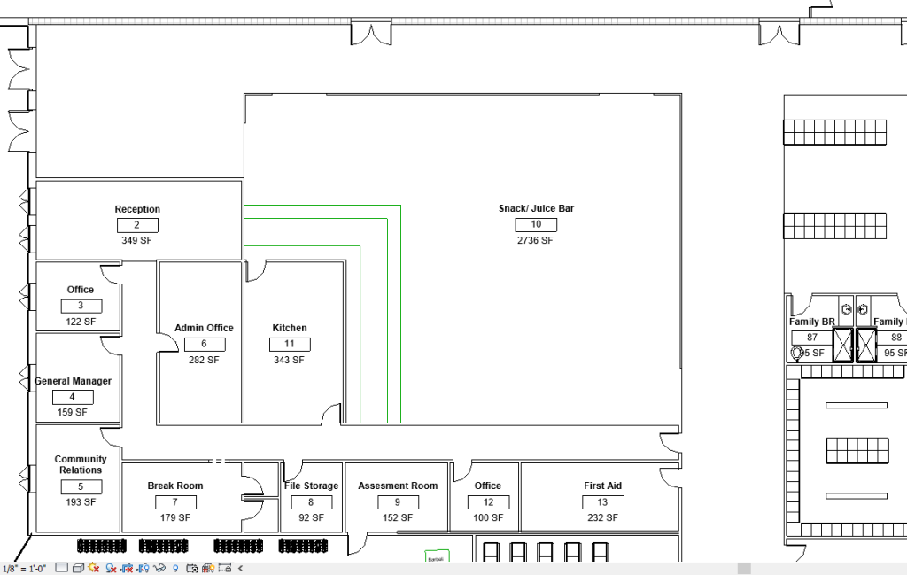
Office / Snack Area
The main offices of the facility are on the fitness side. Though the meeting side also has some offices.
A snack and juice/ coffee bar area is provided to provide a post workout snack or a quick refreshment during events.
A healthy fast-food option can also be considered.
Educational Classrooms
Educational space to teach art, cooking or nutrition, computer skills, or general music lessons are provided.
The same spaces could also be utilized for art or music therapy programs.
A gardening program may also be worth considering
Main Lounge
The main lounge may be subdivided into other areas for different activities such as:
- Game rooms
- TV watching
- Study areas
- Or a library area
Additional meeting rooms are also rentable for various community needs.
Banquet Hall/ Meeting Rooms
- 14,169 sq ft banquet hall, can be divided into 1-12 spaces
- Full service kitchen
- 10 Rentable meeting rooms
Retractable doors slide open when dividers are extended to access hall.
Additional Considerations
These items are not currently included in plan but could be incorporated on a second floor or outdoor area.
- Dorm type sleeping areas for disaster recovery teams
- Indoor/ Outdoor gardening projects
- May provide additional socialization opportunities, provide food for our food pantry, teach gardening to community, or may be an income stream for the complex.
















































