This was one of the first house plans I designed using AutoCad 2000 in Highschool- 2004. I originally thought of the split staircase and designed the house around that. As this was a practice project, I did not spend much time developing the upstairs until I revisited the project in 2021 using Revit.

At this point the central stair and huge living room and foyer just creates a lot of wasted space and unusable areas. So, If I spend more time on this project, I will likely redo the central area and remove the split stairs for better traffic flow.

Revit Redesign

When redesigning this house, I first had a secondary staircase to the left of the main, but it was distant from the laundry room, so I moved it and redesigned the laundry area. below this stair, I also have a similar stair that could go to a possible basement area if desired.I expanded the upstairs bedrooms, and also included a semi-finished storage area in the attic accessible by a collapsible staircase from the garage.

Redesigned in Revit 2018 in 2021.

  • 5 Bed/ 5.5 Bath
  • 1st Floor: 5,195 Sq Ft
  • Garage: 1,213 Sq Ft
  • 2nd Floor: 2,610 Sq Ft
  • Total Living: 7,805 Sq Ft
  • +Garage: 9,018 Sq Ft

This version was closest to the original design, but I added a secondary staircase so occupants can get to the laundry and other downstairs rooms without going down the main, more public stair. But since the laundry area is on the opposite side, I moved this for version 2.

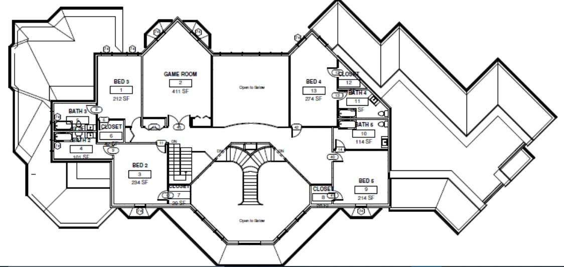
The second floor has a lot of wasted space in the hallway around bedroom 5. And the bathrooms could probably utilize the available attic space more.

In version 2 of this plan, I moved the secondary staircase to the right and redid the laundry area to accommodate this. I also switched the half bath to the opposite side.As it stands, I will most likely want to redo this again, getting rid of the split staircase in favor of a more efficient layout of the foyer and gathering room. As the current traffic flow between rooms limits where I can place the furniture.I included a space for a gym, but that may not be the best arrangement and may be better placed in the library or office spaces. In addition, the library and office together may be redundant.

This first-floor 3d view shows the stairs to both the second floor, and a possible basement. It also shows the proposed work area in the garage and additional furniture arrangements.

In the upstairs redesign, I made the bedrooms larger, and also added larger closets, while rearranging some of the bathroom layouts.The game room includes a pool table, but that may not really be the best arrangement for the space.There is a semi-finished storage area in the attic accessible by the garage as well.

The second floor has open areas above the Gathering room and foyer. The bedroom shapes are irregular but provide space for a queen-size bed (shown) or larger, plus a desk and other furniture. They each include a large walk-in closet and individual bathrooms.

The office and library area use available models to propose a possible furniture arrangement for each. The library can be used more for a quieter gathering area, or for reading. while the office is designed for functionality as well as meetings.In the gathering room, I have shown a flat-screen tv.

The master bath includes his and her closets, and vanity areas. It also includes a large tub, and shower, plus a personal sauna.

The split staircase is the first thing I dreamt up when designing this house. The rest of the house was designed around it. Unfortunately, this split stair, also creates an inefficient design and poor traffic flow between areas of the house, so I will have to rethink the design.But the current design includes a large chandelier over the stairs, as well as wall lighting to create a grand entrance.

I put the fireplace in the area behind the stairs thinking that could be another area for a family to sit and enjoy the fire, but the traffic concerns within the house makes this a poor placement and will have to be redone.

My kitchen includes a large island where the oven will be located, as well as a large appliance cabinet and plenty of storage places for the kitchen needs.

Old Design

The 1st Floor of this house starts in the grand foyer with a split staircase leading up to the second floor. Through the archways on either side of the stairs, you enter into the great room. To the left of the great room is a room dedicated to music. Also shown are the library, a large office, and the master bedroom complete with a personal sauna in the Master Bath. On the right of the great room is the large dining room, kitchen, a utility room and the three car garage complete with a built in work area.

Designed in AutoCAD 2000 in my high school drafting class (2004).

  • 1st Floor: 6,156 Sq Ft
  • 2nd Floor: 2,494 Sq Ft
  • Total: 8,650 Sq Ft